Listing Tools

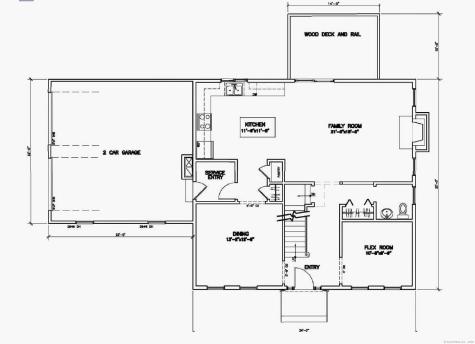
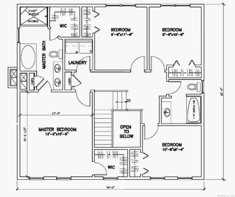
Lake Overlook Estates an enclave of 12 homesites with stunning seasonal views of Lake Pocotopaug. Expanded Colonial I - this stately home offers a spacious and dramatic first floor with two story entry and double sided balcony overlook. The large kitchen is open to eating area and large great room. One will enjoy a mudroom, first floor office and fantastic sized dining room. This amazing abode offers plenty of large windows throughout letting the outside in. The upstairs offers an oversized primary bedroom with 2 large walk in closets, an ensuite with soaking tub and oversized walkin tile shower. One will also enjoy a walk in laundry room with plenty of space also located on the second floor. Possible upgrades include 17x14 side family room/solarium/sunroom and a possibility of finishing above the garage for a 5th bedroom or additional space. Pricing ranges from $602,400 to $655,400 from 2200 S.F. to 2852 S.F. depending on floor plan. Some additional standard features include granite counters, onsite finished hardwood floors throughout first and second floor, gas fireplace, decks, white cabinetry. The list goes on! Public sewer, public water. Choose your prime homesite today. Please do not go onto site. Road is under construction.

Property Details of 13 Freya Lane

Map Location

Driving Directions

Listed by Mark A. Toledo of Berkshire Hathaway NE Prop. ((860) 301-2339)

The data relating to real estate for sale on this website appears in part through the SmartMLS Internet Data Exchange program, a voluntary cooperative exchange of property listing data between licensed real estate brokerage firms, and is provided by SmartMLS through a licensing agreement. Listing information is from various brokers who participate in the SmartMLS IDX program and not all listings may be visible on the site. The property information being provided on or through the website is for the personal, non-commercial use of consumers and such information may not be used for any purpose other than to identify prospective properties consumers may be interested in purchasing. Some properties which appear for sale on the website may no longer be available because they are for instance, under contract, sold or are no longer being offered for sale. Property information displayed is deemed reliable but is not guaranteed. Copyright 2026 SmartMLS, Inc.

Hi there! How can we help you?

Contact us using the form below or give us a call.

Send Us A Message:

I agree to receive marketing and customer service calls and text messages from Valley Fine Homes at Berkshire Hathaway. To opt out, you can reply 'stop' at any time or click the unsubscribe link in the emails. Consent is not a condition of purchase. Msg/data rates may apply. Msg frequency varies. Privacy Policy.

Do not fill in this field:

This site is protected by reCAPTCHA and the Google Privacy Policy and Terms of Service apply.

Hi there! How can we help you?

Contact us using the form below or give us a call.

Send Us A Message:

Do not fill in this field:

This site is protected by reCAPTCHA and the Google Privacy Policy and Terms of Service apply.

Hi there! How can we help you?

Contact us using the form below or give us a call.

Send Us A Message:

Do not fill in this field:

This site is protected by reCAPTCHA and the Google Privacy Policy and Terms of Service apply.

Do not fill in this field:

This site is protected by reCAPTCHA and the Google Privacy Policy and Terms of Service apply.

Do not fill in this field:

This site is protected by reCAPTCHA and the Google Privacy Policy and Terms of Service apply.

Do not fill in this field:

This site is protected by reCAPTCHA and the Google Privacy Policy and Terms of Service apply.

$

Do not fill in this field:

This site is protected by reCAPTCHA and the Google Privacy Policy and Terms of Service apply.